MHB Arrangement of eight people around a square table (problem from Grimaldi's book)

  • Thread starter Thread starter issacnewton
  • Start date Start date
  • Tags Tags
    Book Square Table
AI Thread Summary
The discussion revolves around the seating arrangements of eight people around a square table, as posed in Ralph Grimaldi's discrete math book. The initial calculation for the total arrangements is confirmed as \( 2(7!) \). A specific challenge arises when considering two individuals, A and B, who do not get along and should not sit next to each other. The initial reasoning leads to an incorrect total of 8640 arrangements, while the correct answer is 7200, which includes additional considerations for A and B's positioning. The conversation highlights the importance of accounting for all possible configurations in combinatorial problems.
issacnewton
Messages
1,035
Reaction score
37
Hi

Here is the statement of the problem from Ralph Grimaldi's discrete math book.

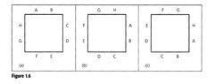
a) In how many ways can eight people, denoted A,B,...,H be seated about the square table shown in the figure (see attachment), where Figs 1.6 (a) and 1.6 (b) are considered the same but are distinct from Fig 1.6 (c).

I got this correct. The answer is \( 2(7!) \).

b)If two of the eight people , say A and B ,do not get along well, how many different seatings are possible with A and B not sitting next to each other ?

Here I reasoned as follows. I first calculate the no of seatings where A and B actually sit together. So with two of them fixed, six others can be permuted in \( 6! \) different ways. But seating arrangement of A , B is different that the arrangement B , A . So to account for this second arrangement we will nee to add \( 6! \) possible arrangements. So total seating arrangements for two of them together is \( 2(6!) \). So to get the answer for this part, we will need to subtract \( 2(6!) \) from \( 2(7!) \). So answer I am getting is 8640. But the answer given for this part is 7200. So can you find mistake in my reasoning ?

Thanks
(Malthe)
 

Attachments

  • 23.jpg
    23.jpg
    13.9 KB · Views: 124
Physics news on Phys.org
IssacNewton said:
Hi

Here is the statement of the problem from Ralph Grimaldi's discrete math book.

a) In how many ways can eight people, denoted A,B,...,H be seated about the square table shown in the figure (see attachment), where Figs 1.6 (a) and 1.6 (b) are considered the same but are distinct from Fig 1.6 (c).

I got this correct. The answer is \( 2(7!) \).

b)If two of the eight people , say A and B ,do not get along well, how many different seatings are possible with A and B not sitting next to each other ?

Here I reasoned as follows. I first calculate the no of seatings where A and B actually sit together. So with two of them fixed, six others can be permuted in \( 6! \) different ways. But seating arrangement of A , B is different that the arrangement B , A . So to account for this second arrangement we will nee to add \( 6! \) possible arrangements. So total seating arrangements for two of them together is \( 2(6!) \). So to get the answer for this part, we will need to subtract \( 2(6!) \) from \( 2(7!) \). So answer I am getting is 8640. But the answer given for this part is 7200. So can you find mistake in my reasoning ?

Thanks
(Malthe)

Hi IssacNewton, :)

You haven't taken into account the cases where A and B are next to each other but on different sides of the square. Then you will have to reduce another \(2\times 6!\) from the total amount. That is,

\[\mbox{Total No. of Arrangements }=(2\times 7!)-(4\times 6!)\]

Kind Regards,
Sudharaka.
 
Thanks Sudhakara

I thought about that but then I didn't consider it as they are not sitting next to each other on one of the four sides. So question is little ambiguous in that sense. But counting that together, as you suggested, I am getting the required answer...

(Malthe)
 
IssacNewton said:
Thanks Sudhakara

I thought about that but then I didn't consider it as they are not sitting next to each other on one of the four sides. So question is little ambiguous in that sense. But counting that together, as you suggested, I am getting the required answer...

(Malthe)

It's a pleasure to help you. :)
 
I was reading a Bachelor thesis on Peano Arithmetic (PA). PA has the following axioms (not including the induction schema): $$\begin{align} & (A1) ~~~~ \forall x \neg (x + 1 = 0) \nonumber \\ & (A2) ~~~~ \forall xy (x + 1 =y + 1 \to x = y) \nonumber \\ & (A3) ~~~~ \forall x (x + 0 = x) \nonumber \\ & (A4) ~~~~ \forall xy (x + (y +1) = (x + y ) + 1) \nonumber \\ & (A5) ~~~~ \forall x (x \cdot 0 = 0) \nonumber \\ & (A6) ~~~~ \forall xy (x \cdot (y + 1) = (x \cdot y) + x) \nonumber...
Back
Top